CAD Design
CAD Design
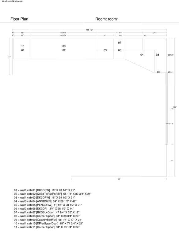
At Wallbeds Northwest we utilize 3D CAD Design Software to help our customers visualize their projects. This allows us to also manufacture cabinetry to custom fit your room without the "custom" charge.
The process is simple. We find out what you want to accomplish, take your room dimensions and draw the cabinetry to fit.

Floor Plan View

Wall Elevation View

Room in 3D view

Enhanced 3D View

